FORLÌ – L’amministrazione comunale informa che, a decorrere dal 7 giugno 2022, inizieranno i lavori previsti ai seguenti accessi del Palazzo Comunale:
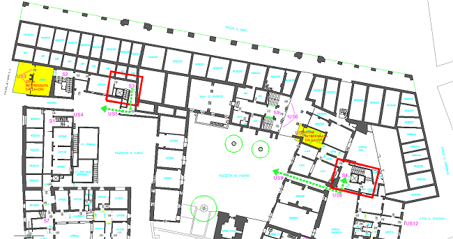
1) accesso posto di fronte allo scalone monumentale, in Piazza Saffi 8, collocato sotto l’androne a fianco dello sportello di Informazione e Accoglienza Turistica – IAT, caratterizzato da porta scorrevole, che porta alla zona Ragioneria / Tributi / Edilizia Privata (accesso US7 che conduce alla scala S4);
2) accesso posto in Via delle Torri n. 3 (porta US3), attualmente non utilizzato come ingresso al pubblico.
Pertanto, fino al termine degli interventi, non sarà possibile utilizzare i due ingressi sopra descritti.
In alternativa all’accesso di cui al punto 1), per raggiungere la zona Ragioneria / Tributi / Edilizia Privata sarà possibile utilizzare un percorso temporaneo che verrà aperto da Piazzetta XC Pacifici civ. n. 3 (porta US9), con i medesimi orari di quello momentaneamente chiuso; oppure si potrà accedere dallo scalone monumentale antistante (porta US6).
In alternativa all’uscita dalla scala di Via delle Torri n. 3, di cui al punto 2), sarà possibile (per i dipendenti e per gli utenti) utilizzare il vano scala S3, che collega tutti i piani dell’edificio, con uscita US5 sulla Piazzetta San Carlo.
Si allega planimetria esplicativa. Una serie di pannelli informativi verranno affissi sugli ingressi chiusi al pubblico





